
Hybrid Reloaded
Study Project
2004
RWTH Aachen

Location - Boulevard de la Sauvenière, Liége, Belgium
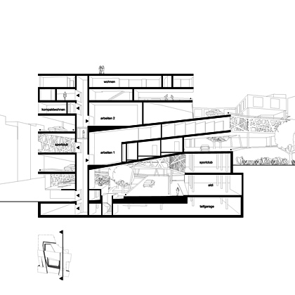
The objective is to develop a building complex realizing a spacial condensation of several functions in an urban environment. It should go well beyond a mere agglomoration of several diverse types of using but - as a result of synergetic mutual exchange processes - should give rise to a true spacial and functional „added value“.
Multi- and pluripotent spaces emerge at the interfaces of different functional domains that are no longer uniquely attributed to a single produce. Interior and exterior can no longer be clearly distinguished, functions and spaces are interwoven so as to create new effects and interdependencies. The following exploitations are to be combined:
Living, shopping, dining, sports, office, parking and nature.
Concept:
Ascending a spiraling ramp - a helix - corresponds to radially leaving the downtown area. The higher I move up the farther I get from the center of town. At the bottom of the ramp - the interface to downtown - one can make use of urban functions represented by a discounter like Aldi or a cafe. Moving up - away from downtown - one finds a sports center typically located in more peripheral city areas. Further up follow office complexes. Finally, the outer circle of this „mini-town“ at the upper end of the ramp is formed by housing units offering all the advantages of suburban living culture.
The „third vertical dimension“ of the helix allows me, in contrast to common two dimensional street patterns, to realize „short cuts“ - to cross dimensions so to speak - in a small scale hybrid-city. The elevator takes one quickly from one level to the next representing a part of town that may be quite distant from the center. The hybrid nature of the whole scenario manifests itself in this combination of suburban life style and urban comfort.
Credits:
Marc Anton Dahmen
Advising Professor:
Wim van den Bergh
